Construction Quoting without Person-to-Person Contact! Free Digital Estimates!!
Construction Quoting without Person-to-Person Contact! Free Digital Estimates!!

Start by taking photos of the intended area for your project and draft a simple sketch. Your initial ideas and visions, no matter how rough they are. Bring these insights to us, and let's set the stage for a remarkable transformation.

With your visuals in hand, we'll dive into a detailed discussion about your project. Expect us to ask questions to understand your vision fully. This step is crucial for us to align our expertise with your dreams, ensuring we craft a project that truly reflects your desires resources to get the job done on time and on budget.

We'll present you with a detailed quote, tailored to your project's specifics. Upon agreement, we start with a 50% deposit. This transparent approach ensures that you are fully informed and comfortable at every stage.

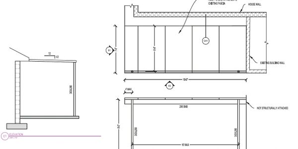
For projects that require structural consideration or for those who desire it, we offer the expertise of our engineering team. They will produce detailed, site-specific drawings to ensure your project is not only beautiful but also structurally sound. This step is optional and can be tailored to the needs of your project.
We understand the importance of flexibility in DIY projects. Whether it's skipping steps that don't apply or taking your time to secure permits, we adapt to your timeline. Inform us when you're prepared, and we'll ensure your aluminum materials and kit are delivered when you need them. We'll then proceed to deliver your aluminum project directly to you or prepare it for pick up.

Screen Rooms
Create bug-free outdoor spaces.
Patio Covers
Protect your patio from the elements.
Storm Protection
Bahama Shutters
Storm Panels
Accordions
Roll Shutters
Pergolas
Enhance your garden with stylish shaded areas.
Siding
Improve your home's exterior with durable siding options.
Soffit
Ventilate and protect the underside of your roof.
Windows
Install energy-efficient and stylish windows.
Doors
Upgrade your home's entryways with high-quality doors.
Carports
Protect your vehicles with sturdy and attractive carports
Embarking on a DIY project with our aluminum kits is an exciting journey for many, but we understand it's not for everyone. Whether it's due to time constraints, a desire for professional craftsmanship, or simply preferring to oversee the project, we've got you covered.
Click below to explore our professional installation services. Our team of experts at Affordable Aluminum brings precision, expertise, and a keen eye for detail to every project. We ensure a seamless, hassle-free installation from start to finish, transforming your space with skill and efficiency.
We use cookies to analyze website traffic and optimize your website experience. By accepting our use of cookies, your data will be aggregated with all other user data.